菜單
菜單
家
Ccr
D1: 濱海灣
D2: 坦琼·帕加尔
紐波特公寓
一個伯南
瓦利希公寓式酒店
D4: 聖淘沙
皇家角
海景
D6: 市政廳
伊甸園住宅國會大廈
D7: 武吉士, 罗乔
中城灣
中城現代
D9: 果園, 流域
希爾之家酒店
伊尔威尔山公寓
克利姆特·凯恩希尔
索菲亚果園
River Green
The Robertson Opus
索菲亚攝政酒店
D10: 唐林, 荷蘭
3 公園旁嘅果園
大道 88
考克登保護區
田莊 1866
杰沃伊斯·普里夫
D11: 牛頓, 诺维纳
附魔
伊基蓋
瓦滕之家酒店
RCR
D2: 唐人街
TMW Maxwell
D3: 亚历山德拉
D4: 海皮
吉寶灣嘅珊瑚
國王碼頭嘅礁石。
D5: 布纳维斯塔
公園旁的花朵
山丘@北一號
The Hillshore (希尔肖尔酒店)
Lyndenwoods
特拉山
D6: 克拉碼頭
坎宁希尔碼頭
D8: 法勒公園
D12: 巴莱斯蒂埃, 大巴窯
文慶嘅阿卡迪
D13: 波通·帕西尔
D14: 尤诺斯, 帕亚·勒巴尔
D15: 海洋遊行, 東海岸
琥珀色海
阿特拉斯西亚
連續統
Emerald of Katong
大邓曼
黑格路
Koon Seng House (冠森之家酒店)
梅耶藍
天布苏大酒店
D19: 巴特利
巴特利·维
D20: 碧山, 汤姆森
Artisan
8
D21: 上武吉提馬
8@BT
松樹山
D1: 克拉碼頭
Union Square Residences
Ocr
D5: 金文
D14: 尤诺斯, 肯班甘。
D15: 西格拉普
D16: 贝多克, 塔纳·梅拉
巴格纳尔豪斯
塞肯卡公寓
D17: 洛陽, 樟宜
袋
海濱
D18: 帕西尔·里斯, 淡濱尼
D19: 塞蘭貢, 侯刚
Chuan Park鑫丰瑞府
D22。: 句容市, 邦莱
湖濱公寓
D23: 希爾維尤, 武吉·潘扬
雅頓酒店
希爾黑文
《神秘》
Norwood Grand景林嘉園
D26: 上汤姆森
伦特山公寓
倫托現代
D27: 義順, 三巴旺
轉售/租賃
Kembangan Semi-D
格林威治酒店
海外
墨爾本
珀斯。
倫敦
商業
Cecil Place
樞紐協同點
博客
最佳小學。
混合發展和綜合發展
美容世界轉型。: 總體規劃 2019
河谷鄰里。
裕廊地區線 (JRL) 捷運指南
横岛線 (Crl) 捷運指南
汤姆森-東岸線 (電話) 捷運指南
大約
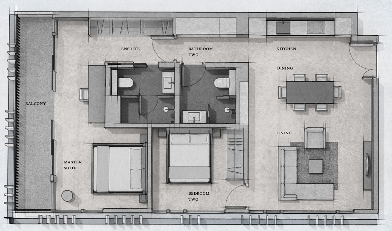
petit-jervois-floor-plan-b10
← 以前
下 →
2 睡房1012方呎
留言
取消回覆
你一定係
登錄
發表評論.
更多信息。
1
WhatsApp
你好,
I'm Benson
. 如何提供幫助?
初初傾偈