Hillhaven, Upper Bukit Timah Condo In the Heart of Nature
Near to MRT
HIllhaven is only 4 minutes' walk to Hillview MRT (Downtown Line), 1 stop away from Beauty World
Abundant Amenities
Conveniently located opposite to HillV2 mall and next to Hillview Community Club for all your daily needs. Other nearby amenities include the Rail Mall, upcoming NS Hub, and Hillion Mall.
Close to Nature
Feel relaxed by the surrounding greenery and parks such as the Rail Corridor, Dairy Farm Nature Park, Bukit Timah Nature Reserve, Bukit Batok Nature Park.Good Schools
Within 1km of CHIJ Our Lady Queen of Peace. Within 2km of St Anthony's Primary, Bukit Panjang Primary, Dazhong Primary, Lianhua Primary and Zhenghua Primary.
Location Map
Project Info
Type: New Launch Condo
Address: 5, 7 Hillview Rise
Tenure: 99 years
Expected TOP: Q3 2027
Developer: Sekisui House & Far East Organization
Land Size: 10,395.2 sqm
Total Units: 341
Unit Types
2 Bedroom: 678-721 sqft
2-Bedroom + Study: 797 sqft
3 Bedroom: 947 & 1,141 sqft
3-Bedroom + Study: 958-1,195 sqft
4-Bedroom: 1,259-1,636 sqft
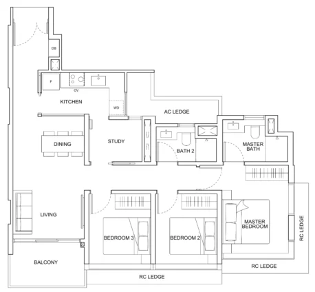
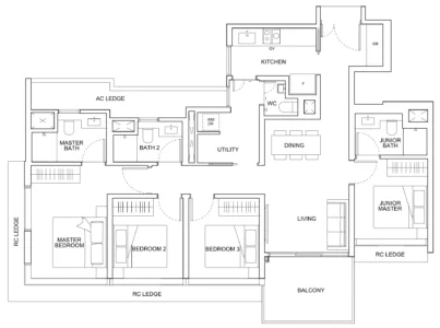
Floor Plans
All 2 bedders at Hillhaven are spacious and feature 2 bathrooms as well as functional semi-enclosed kitchens. Flexible 3 + study layouts allow you to use the study as a helper's room, study, or storeroom
Prices
Register your interest below for current availability and prices direct from developer.
Register Your Interest in Hillhaven
For immediate assistance call 83187083. Languages spoken: English, 中文, 廣東話.

















