Property Fishing - Catch the Best Property Deals in Singapore

Connect with us

MENUMENU
  • Home
  • CCR
        • D1: Marina Bay
        • D2: Tanjong Pagar
          • Newport Residences
          • One Bernam
          • Wallich Residence
        • D4: Sentosa
          • Cape Royale
          • Seascape
        • D6: City Hall
          • Eden Residences Capitol
        • D7: Bugis, Rochor
          • Midtown Bay
          • Midtown Modern
        • D9: Orchard, River Valley
          • Hill House
          • Irwell Hill Residences
          • Klimt Cairnhill
          • Orchard Sophia
          • River Green
          • The Robertson Opus
          • Sophia Regency
        • D10: Tanglin, Holland
          • 3 Orchard By The Park
          • Boulevard 88
          • Cuscaden Reserve
          • Grange 1866
          • Jervois Prive
        • D11: Newton, Novena
          • Enchante
          • Ikigai
          • Watten House
  • RCR
        • D2: Chinatown
          • TMW Maxwell
        • D3: Alexandra
        • D4: Harbourfront
          • Corals at Keppel Bay
          • The Reef At King's Dock
        • D5: Buona Vista
          • Blossoms By The Park
          • The Hill @ One North
          • The Hillshore
          • Lyndenwoods
          • Terra Hill
        • D6: Clarke Quay
          • Canninghill Piers
        • D8: Farrer Park
        • D12: Balestier, Toa Payoh
          • The Arcady at Boon Keng
        • D13: Potong Pasir
        • D14: Eunos, Paya Lebar
        • D15: Marine Parade, East Coast
          • Amber Sea
          • Atlassia
          • The Continuum
          • Emerald of Katong
          • Grand Dunman
          • Haig Road
          • Koon Seng House
          • Meyer Blue
          • Tembusu Grand
        • D19: Bartley
          • Bartley Vue
        • D20: Bishan, Thomson
          • Artisan 8
        • D21: Upper Bukit Timah
          • 8@BT
          • Pinetree Hill
        • D1: Clarke Quay
          • Union Square Residences
  • OCR
        • D5: Clementi
        • D14: Eunos, Kembangan
        • D15: Siglap
        • D16: Bedok, Tanah Merah
          • Bagnall Haus
          • Sceneca Residence
        • D17: Loyang, Changi
          • Kassia
          • The Shorefront
        • D18: Pasir Ris, Tampines
        • D19: Serangoon, Hougang
          • Chuan Park 鑫丰瑞府
        • D22: Jurong, Boon Lay
          • The Lakegarden Residences
        • D23: Hillview, Bukit Panjang
          • The Arden
          • Hillhaven
          • The Myst
          • Norwood Grand 景林嘉园
        • D26: Upper Thomson
          • Lentor Hills Residences
          • Lentor Modern
        • D27: Yishun, Sembawang
  • Resale/Rental
        • Kembangan Semi D Living
        • The Greenwich Dining
        • The Greenwich
  • Overseas
        • Melbourne
        • Perth
        • London
  • Commercial
    • Cecil Place
    • Hub Synergy Point
  • Blog
    • Best Primary Schools
    • Mixed Developments and Integrated Developments
    • Beauty World Transformation: Master Plan 2019
    • River Valley Neighbourhood
    • Jurong Region Line (JRL) MRT Guide
    • Cross Island Line (CRL) MRT Guide
    • Thomson-East Coast Line (TEL) MRT Guide
  • About

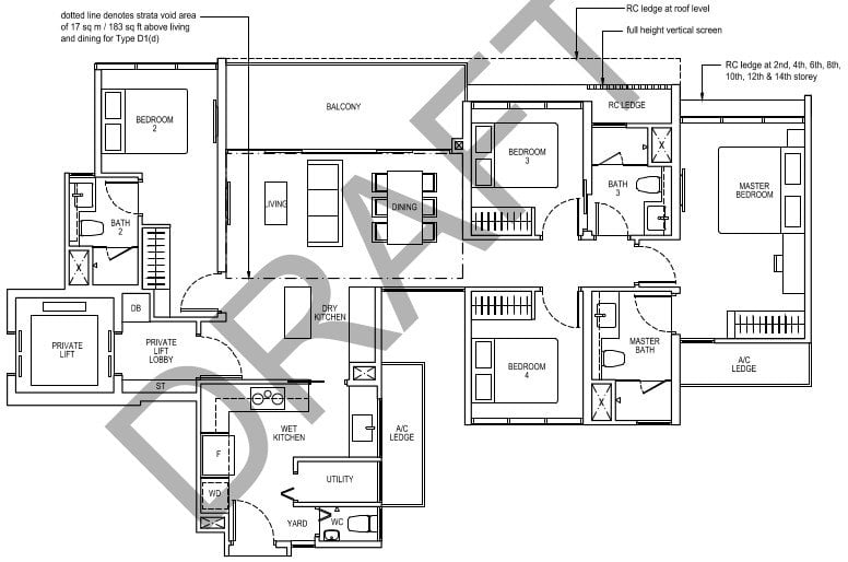
the-tapestry-floor-plan-d1

← Previous Next →
The Tapestry Floor Plan D1

4 Bedroom (1432sqft)

All information given is correct at the point of publishing and we strive to keep it updated. In the case of new launches, the information may be tentative and subject to changes by the developers.

Copyright Benson Yan R027135J
Privacy Policy

A SiteOrigin Theme
More Info
1
WhatsApp
Hi, I'm Benson. How can I help?
Start Chat