MENU
MENU
Home
CCR
D1: Marina Bay
D2: Tanjong Pagar
Newport Residences
One Bernam
Wallich Residence
D4: Sentosa
Cape Royale
Seascape
D6: City Hall
Eden Residences Capitol
D7: Bugis, Rochor
Midtown Bay
Midtown Modern
D9: Orchard, River Valley
Hill House
Irwell Hill Residences
Klimt Cairnhill
Orchard Sophia
River Green
The Robertson Opus
Sophia Regency
D10: Tanglin, Holland
3 Orchard By The Park
Boulevard 88
Cuscaden Reserve
Grange 1866
Jervois Prive
D11: Newton, Novena
Enchante
Ikigai
Watten House
RCR
D2: Chinatown
TMW Maxwell
D3: Alexandra
D4: Harbourfront
Corals at Keppel Bay
The Reef At King's Dock
D5: Buona Vista
Blossoms By The Park
The Hill @ One North
The Hillshore
Lyndenwoods
Terra Hill
D6: Clarke Quay
Canninghill Piers
D8: Farrer Park
D12: Balestier, Toa Payoh
The Arcady at Boon Keng
D13: Potong Pasir
D14: Eunos, Paya Lebar
D15: Marine Parade, East Coast
Amber Sea
Atlassia
The Continuum
Emerald of Katong
Grand Dunman
Haig Road
Koon Seng House
Meyer Blue
Tembusu Grand
D19: Bartley
Bartley Vue
D20: Bishan, Thomson
Artisan 8
D21: Upper Bukit Timah
8@BT
Pinetree Hill
D1: Clarke Quay
Union Square Residences
OCR
D5: Clementi
D14: Eunos, Kembangan
D15: Siglap
D16: Bedok, Tanah Merah
Bagnall Haus
Sceneca Residence
D17: Loyang, Changi
Kassia
The Shorefront
D18: Pasir Ris, Tampines
D19: Serangoon, Hougang
Chuan Park 鑫丰瑞府
D22: Jurong, Boon Lay
The Lakegarden Residences
D23: Hillview, Bukit Panjang
The Arden
Hillhaven
The Myst
Norwood Grand 景林嘉园
D26: Upper Thomson
Lentor Hills Residences
Lentor Modern
D27: Yishun, Sembawang
Resale/Rental
The Greenwich
Overseas
Melbourne
Perth
London
Commercial
Cecil Place
Hub Synergy Point
Blog
Best Primary Schools
Mixed Developments and Integrated Developments
Beauty World Transformation: Master Plan 2019
River Valley Neighbourhood
Jurong Region Line (JRL) MRT Guide
Cross Island Line (CRL) MRT Guide
Thomson-East Coast Line (TEL) MRT Guide
About
parc-clematis-floor-plan-5p2
← Previous
Next →
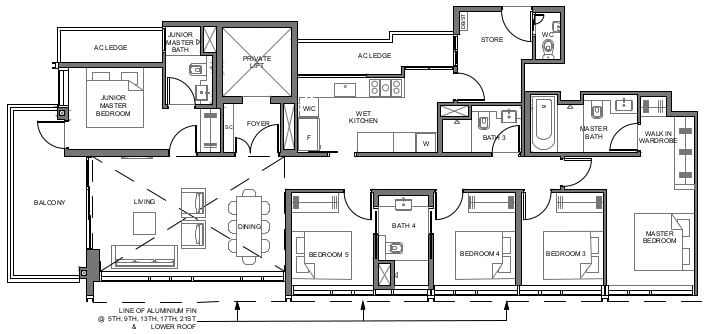
5 Bedroom Premium 1711sqft
Leave a Reply
Cancel reply
You must be
logged in
to post a comment.
More Info
1
WhatsApp
Hi, I'm Benson. How can I help?
Start Chat